Villa Suiza was original built in 1970 and transformed during 2023-2024 in a spectacular contemporary one level villa with fantastic views to the Mediterranean Sea, Gibraltar and to the African coast. This villa has been renovated and transformed into a contemporary bright villa, but without „breaking“ the charm of the original Andalusian house, situated in a very quiet area in Elviria. All the installations such as electric, water pipes, photovoltaic, heat pumps for underfloor heating and air conditioning are completely new and make this villa with an Energy Performance Certificate A unique. The villa was sold in the end of 2024.
4
Bedrooms
4
En-suite bathrooms and guest toilet
515
Square meters living area
1414
Plot surface
3
Parking places on plot
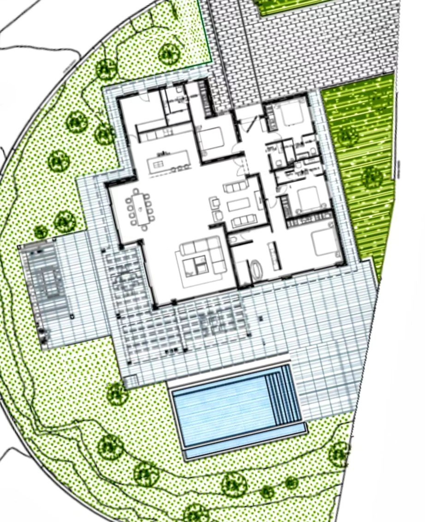
Villa Suiza (Elviria, Marbella)
Plot
- Plot surface is 1.414 sqm
- Orientation is south-west facing with unobstructed panoramic sea and mountain view
- Living area of 280 sqm
- Terraces 235 sqm
- 3 parking slots on plot
- 30 m² installation and storage room
- Maximum privacy is guaranteed
Layout
- One level villa, no stairs or steps
- 4 bedrooms with ensuite bathrooms
- Separate guest toilet
- Utility room with external access behind the kitchen
- Ceiling heights between 2,54-2,58m
Electricity, Cooling & Heating
- Sustainable concept including Photovoltaic system (8.3kwh)
- Underfloor heating with thermodynamic heating system, individual controllable in each room
- Bioethanol fireplace (Planika) without smoke during usage (8kwh)
- AC/Heating System (individual controllable in each room)
- Energy Performance Certificate A
Garden & Pool
- New landscaped garden with infinity pool with a size of 10,00×4,70m and a deep between 1,20-1,55m
- View over the municipality of Elvira, the Mediterranean Sea to Gibraltar and the north coast of Africa
Security
- Alarm system installed and in usage (remote via App)
- Door intercom with video function (remote via App)
Furniture
- Bespoke kitchen including wine cooler and fully furnished villa
- Ceiling-high built-in wardrobes in the bedrooms with LED and motion sensor
- Ceiling spotlights & indirect lightning
Architect & Developer
GANA Arquitectura S. Coop. And. (en adelante, GANA Arquitectura), Malaga
Cape Sun Marbella S.L.
CONTACT
Cape Sun Marbella S.L.
Calle Dalia 23 B
29604 Marbella
info@capesun.es
Eckhard Höschler
hoeschler@capesun.es
+34 639 621 831
![]()
Download VCF Business card
Antje Krall
krall@capesun.es
+34 639 251 260
![]()
Download VCF Business card



















































