Villa Magnolia is a contemporary Mediterranean residence on a corner plot arranged in an L-shaped layout open to the south to maximise light, privacy and views with consideration of latest construction and sustainability standards.
The plan has been submitted and is waiting for final approval of the building permit by the Marbella municipality, planned start of construction in 2027. The villa is available for purchase “off plan,” giving the potential new owner the opportunity to incorporate their wishes during the construction phase.
4
Bedrooms
4
En-suite bathrooms and 2 guest toilet
336
Square meters living area
1.011
Plot surface
2
Underground parking places on plot
Villa Magnolia (Elviria, Marbella)
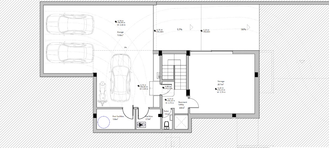
Plot
- Plot surface is 1.011 sqm
- Orientation is south-west facing with sea and mountain view
- Living area of 336 sqm
- Terraces 101 sqm
- Underground parking (3 spots)
Layout
- Kitchen and living room with access to the pool area and terraces
- Utility room and storage with external access behind the kitchen
- 4 bedrooms with ensuite bathrooms
- 2 Separate guest toilets
- Separate pool house with possibility for gym and sauna incl. shower and toilet
- Possibility for elevator
- Additional storage in the basement of 44 sqm
Electricity, Cooling & Heating
- Underfloor heating with thermodynamic heating system, individual controllable in each room
- AC/Heating System, individual controllable in each room
- Bioethanol fireplace
- Solar panels
Graden & Pool
- Infinity pool and adjoining chill-out area
- Bespoke landscaped garden
Security
- Bespoke protection system with remote control via App
- Door intercom with video function remote controlled via App
Furniture
- The furnishings will follow the latest trend and have not been finalized yet.
- Outlook: Bespoke and fully equipped kitchen, built-in wardrobes in the bedrooms with LED and motion sensor, lighting concept
Architect & Developer
HOJAS ARQUITECTOS, Fuengirola
Villa Magnolia Corporate S.L. a joint venture with Cape Sun Marbella S.L.
CONTACT
Cape Sun Marbella S.L.
Calle Dalia 23 B
29604 Marbella
info@capesun.es
Eckhard Höschler
hoeschler@capesun.es
+34 639 621 831
![]()
Download VCF Business card
Antje Krall
krall@capesun.es
+34 639 251 260
![]()
Download VCF Business card













